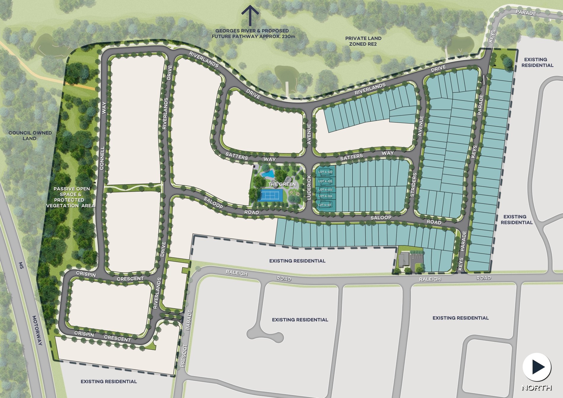
Masterplanned for living
Our vision at Riverlands by Mirvac, to unlock the riverside parklands alongside the Georges River for a thriving new community, begins with an inspired masterplan sensitive to the environment and the way people live.
This masterplanned community will introduce more than 300 Mirvac designed homes and a lifestyle shaped by nature, connection and harmony. Situated at the heart of the masterplan, The Green is a future resident exclusive amenity set to feature a swimming pool, tennis court, playground, barbecues and picnic areas, curated to enrich daily life and strengthen community bonds.

